Закажите монтаж вентиляции, получите бесплатно:
- Выезд на объект и обследование
- Эскизный или рабочий проект по помещениям
- Проверку Вашего проекта вентиляции
- Согласование с надзорными органами
Группа компаний НПК «Завод модульного энергооборудования» осуществит монтаж вентиляции, монтаж дымоудаления и устройство противодымной вентиляции, как приточной, так и вытяжной в Калуге и Калужской области.
Монтаж вентиляции производится сотрудниками, имеющими аттестацию в промышленной безопасности, что позволяет нам проводить работы в опасных и взрывоопасных промышленных цехах, на объектах нефтегазовой и химической промышленности.
Также мы проводим монтаж систем вентиляции в частном доме, квартире, торговых центрах, магазинах, детских садах, лечебных учреждениях, стоматологических кабинетах.
Установка систем противодымной вентиляции и монтаж вентиляции дымоудаления из торговых помещений и жилых домов производится комплексно, включая автоматизацию и электроснабжение вентиляции, срабатывания от пожарных извещателей, отключение общеобменной вентиляции при пожаре.
Заказав монтаж вентиляции под ключ сейчас Вы получите:
Выезд инженера бесплатно в течение 48 часов!
Перечень исполнительной документации по вентиляции
При новом строительстве, ремонте помещений с разным назначением и большой площади, основанием для монтажа является проект систем вентиляции, т.к. необходимо проделать большую проектную работу, занимающую много времени, для обеспечения соблюдения норм и правил.
Установка вентиляции при малых объемах работ проводится без проектных работ, но в исполнительной документации и паспортах систем вентиляции обязательно должно быть отражено соответствие установленных вентсистем требованиям норм, действующих в РФ.
Важно не забывать о смежных работах, так как без системы электроснабжения и автоматизации ни одна механическая вентиляция не функционирует.
Монтаж вентиляции – это строительно-монтажные работы, требующие от проводящей их организации членства в СРО и иных разрешительных документов.
Этапы монтажа вентиляции следующие:
Вентиляция производственных помещений требует паспорт систем вентиляции, а также акты проверки эффективности систем вентияции по каждому отдельному помещению. Это свидетельство того, что выполнена наладка вентиляции и соблюдены требования безопасности труда.
Противодымная защита при пожаре, с установкой противопожарных и противодымных клапанов, огнезащитой воздуховодов и установкой вентилятора дымоудаления - так же насущная необходимость!

Перечень документов и состав исполнительной документации по вентиляции аналогичен любому строительному объекту, но включает ряд документов, касаемых описания и характеристик вентиляционных систем, их соответствия действующим на территории РФ правилам и нормам.
Ниже представлен пример подробного перечня:
Помимо этого необходимо выполнить отдельно исполнительную документацию по электроснабжению и автоматизации систем вентиляции, включающую себя дополнительно разделы:
Дополнительные акты и документы в исполнительной документации зависят от назначения объекта и внутриведомственных норм, разных для различных предприятий.
Стоимость работ по монтажу систем вентиляции, монтажу дымоудаления, устройству противодымной вентиляции зданий определяется при составлении сметы, с понижающим индивидуальным коэффициентом. Срок монтажа определяется условиями работы на объекте и степенью его строительной готовности.
При этом реконструкция, капитальный и текущий ремонт существующих систем вентиляции должна учитывать демонтажные работы, а также удорожание за счет необходимости работать в подпотолочном пространстве, стесненных условиях, на высоте и помещениях с работающими людьми.
По окончанию монтажа систем вентиляции мы примем Ваш законченный строительством объект на сервисное обслуживание.
Стоимость монтажа воздуховодов вентиляции за погонный метр рассчитывается исходя из площади поверхности погонного метра воздуховода данного сечения в метрах квадратных, по ценам в приведенной выше таблице.
Монтаж вентиляции в предприятиях общественного питания и производства пищевой продукции подразумевает полное соответствие санитарным нормам.
Но очень важно удобство дальнейшего обслуживания систем вентиляции, очистки воздуховодов и жироуловителей.
В зависимости от вместимости помещения общественного питания, количества посадочных мест и печей, возможно использование лишь вытяжной вентиляции, без организованного притока воздуха.
![]() |
![]() |
||
| Приточно-вытяжная вентиляция в пекарне с зонтами над пароконвектоматом и фритюрницей | Вытяжная вентиляция в пекарне с зонтами над оборудованием и подъемом воздуховода по фасаду | ||
| Производительность | 1200 м3/час | Производительность | 1300 м3/час |
| Цена оборудования | 185 000 руб | Цена оборудования | 85 000 руб |
| Цена с установкой | 240 000 руб | Цена с установкой | 125 000 руб |
| Срок монтажа | 5 дней | Срок монтажа | 4 дня |
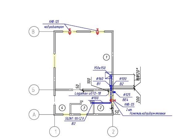
Во всех новых квартирах застройщики устанавливают приточные клапаны наружного воздуха по требованию госстройнадзора, так как современные пластиковые окна являются плотными, и не позволяют наружному воздуху попадать в квартиру.
Эта проблема решается монтажом приточной вентиляции в квартире, как принудительной - с установкой приточной системы, так и естественной - с установкой обычных клапанов приточного воздуха, например КИВ-125. Такое решение монтажа вентиляции в квартире самое бюджетное, но при этом эффективное.
Наши инженеры рекомендуют устанавивать приточную вентиляцию в спальнях, чтобы перетоком воздух попадал в помещения гостиной, кухни и санузла, откуда удалялся вытяжной вентиляцией. Так свежий воздух будет во всей квартире.
Клапан приточного воздуха желательно устанавливать над радиатором отопления, в нем присутствует фильтр с высокой степенью очистки и клапан регулирования расхода воздуха.
![]() |
![]() |
||
| Приточно-вытяжная вентиляция в 1 или 2 комнатную квартиру с притоком через приточные клапаны КИВ-125 и вытяжкой из санузла и кухни с установкой зонта над плитой | Недорогая приточно-вытяжная система для 3 комнатной квартиры с рекуперацией тепла с установкой Shuft NOVA-300 | ||
| Производительность | 150 м3/час | Производительность | 300 м3/час |
| Срок монтажа | 1 день | Срок монтажа | 3 дня |
![]() |
![]() |
||
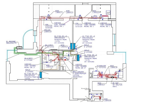
| Приточно-вытяжная вентиляция в квартиру с приточной установкой ТИОН О2, Ballu Machine Air Master или Mitsubishi Electric LOSSNEY, вытяжкой из санузла и кухни с установкой зонта над плитой | Вентиляция с кондиционированием воздуха в квартире более 100 м2 во всех комнатах | ||
| Производительность | 150-200 м3/час | Производительность | 1500-2000м3/час |
| Срок монтажа | 2 дня | Срок монтажа | 6 дней |
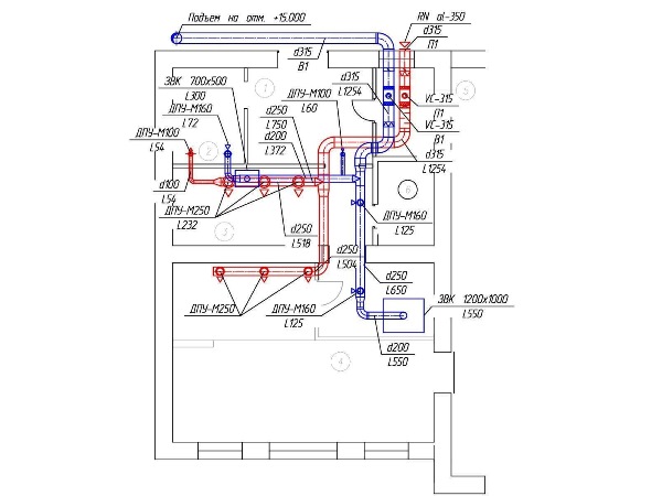
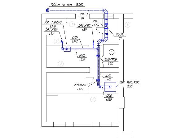
В отличие от квартиры, каждый частный дом индивидуален по планировке, дизайну, строительным решениям, поэтому варианты по монтажу вентиляции всегда разные.
Исходить необходимо из располагаемого бюджета и требований дизайна, также стоит вопрос долговечности вентиляции. Из этих соображений, ввиду прокладки воздуховодов по чердаку, рекомендуем применять воздуховоды вентиляции из нержавеющей стали.
Если частный дом деревянный, то необходимо помнить об его усадке со временем, для этого между этажами воздуховоды соединяют не жестко, один внутрь другого, с установкой противопожарного шнура в стыки.
![]() |
![]() |
||
| Недорогая вентиляция в частный дом с притоком воздуха в спальни и котельную через приточные клапаны КИВ-125 | Приточно-вытяжная система для коттеджа с рекуперацией тепла и кондиционированием | ||
| Производительность | 150 м3/час | Производительность | 1500 м3/час |
| Срок монтажа | 5 дней | Срок монтажа | 10 дней |
Гарантия на монтаж вентиляции и автоматики составляет пять лет, так как это строительные работы, и подчиняются требованиям законодательства РФ в сфере строительства.
Но важно помнить при выборе оборудования, что гарантия на вентиляционное оборудование устанавливается изготовителем, и может, в зависимости от качества составлять от полугода, до пяти лет!